設計師:秦嶺(鼓樓旗艦店 主任設計師)
戶型詳情:錦繡濱江花園125平米 歐式風格
案例說明
現代歐式風格設計從簡單到繁雜、從整體到局部,精雕細琢,鑲花刻金都給人一絲不茍的印象。一方面保留了材質、色彩的大致風格,讓人感受到傳統的歷史痕跡與渾厚的文化底蘊,同時又摒棄了過于復雜的肌理和裝飾,簡化了線條。這套方案在注重裝飾效果的同時,用現代的手法和材質還原古典氣質,讓戶主在享受物質文明的同時又能獲得精神上的慰藉。注重裝飾效果,用室內陳設品來增強歷史文脈特色,烘托室內環境氣氛。
優缺點分析
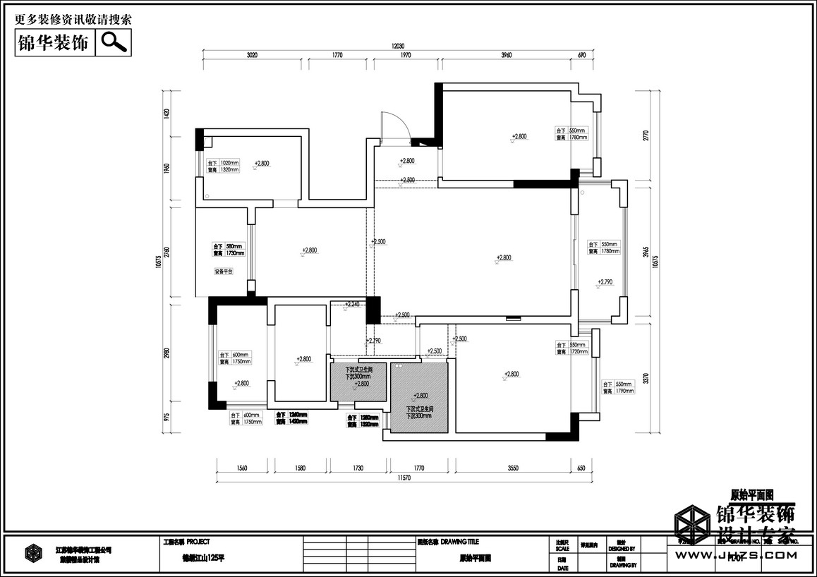
優點:
房型方正,南北通透,雙軸線通風
采光通透
自然通風良好
缺點:
廚房門位置不利于廚房的設置
衛生間周圍區域的墻體較亂
衛生間采光、通風差
原始結構圖↓
平面布置圖↓
鳥瞰圖↓
俯視圖↓
效果圖↓
效果圖↓
效果圖↓
想了解更多錦繡濱江花園戶型資料么?
錦華裝飾準備了錦繡濱江花園各戶型全套設計方案、工程量報價、參考效果圖、主材搭配方案.歡迎您和網絡客服取得聯系,預約來店面詳細溝通.錦華裝飾,設計專家!.
江蘇家裝示范品牌
代表地區優秀設計聲音
集28年工程管理經驗之大成
省時、省力更省心
| 走進錦華 | 設計團隊 | 作品列表 | 戶型解析 | 裝修百科 |
關注錦華公眾號
|
瀏覽手機官網 |
全國熱線 025 86550815 |
||||||||||
| 新聞列表 | 錦華文化 | 堂杰國際設計 | 1865旗艦店 | 極簡 | 中古 | 秦淮金茂府 | 常見問題 | ||||||||||
| 全國分公司 | 錦華招聘 | 河西旗艦店 | 鼓北旗艦店 | 法式 | |||||||||||||
| 錦華簡介 | 聯系我們 | 城東旗艦店 | 江寧旗艦店 | 歐式古典 | 北歐 | 中交錦方 | |||||||||||
| 資質榮譽 | 法律聲明 | 江北旗艦店 | 江浦店 | 美式田園 | 新古典 | 溧水玖宸府 | |||||||||||