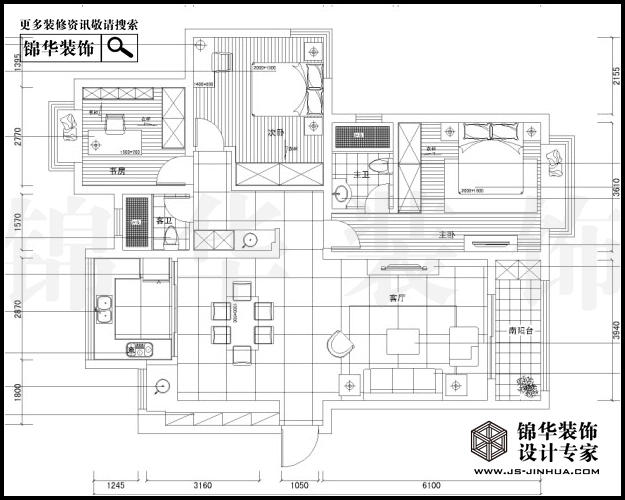
戶型名城:五礦御江金城C3戶型145平米
針對五礦御江金城交付的各個戶型我們已舉行過研討會,戶型的優缺點以及設計方案也已出爐.歡迎您和我們取得聯系,讓設計師結合您家要求做定制設計!
■此套方案是已簽約優秀設計案節選,詳細方案受版權保護不對外提供.
五礦御江金城C3戶型145平米平面布置分析↓

五礦御江金城C3戶型145平米客廳效果圖↓

想了解更多五礦御江金城戶型資料么?
錦華裝飾準備了五礦御江金城各戶型全套設計方案、工程量報價、參考效果圖、主材搭配方案.歡迎您和網絡客服取得聯系,預約來店面詳細溝通.錦華裝飾,設計專家!.
QQ: 電話:86550815
想了解更多御江金城戶型資料么?
錦華裝飾準備了御江金城各戶型全套設計方案、工程量報價、參考效果圖、主材搭配方案.歡迎您和網絡客服取得聯系,預約來店面詳細溝通.錦華裝飾,設計專家!.
江蘇家裝示范品牌
代表地區優秀設計聲音
集28年工程管理經驗之大成
省時、省力更省心
| 走進錦華 | 設計團隊 | 作品列表 | 戶型解析 | 裝修百科 |
關注錦華公眾號
|
瀏覽手機官網 |
全國熱線 025 86550815 |
||||||||||
| 新聞列表 | 錦華文化 | 堂杰國際設計 | 1865旗艦店 | 極簡 | 中古 | 秦淮金茂府 | 常見問題 | ||||||||||
| 全國分公司 | 錦華招聘 | 河西旗艦店 | 鼓北旗艦店 | 法式 | |||||||||||||
| 錦華簡介 | 聯系我們 | 城東旗艦店 | 江寧旗艦店 | 歐式古典 | 北歐 | 中交錦方 | |||||||||||
| 資質榮譽 | 法律聲明 | 江北旗艦店 | 江浦店 | 美式田園 | 新古典 | 溧水玖宸府 | |||||||||||